阿摩線上測驗
登入
首頁
>
技檢◆造園景觀-乙級
> 114年 - 13600 造園景觀 乙級 工作項目 08:工料計算 1-66(2025/12/19 更新)#135396
114年 - 13600 造園景觀 乙級 工作項目 08:工料計算 1-66(2025/12/19 更新)#135396
科目:
技檢◆造園景觀-乙級 |
年份:
114年 |
選擇題數:
66 |
申論題數:
0
試卷資訊
所屬科目:
技檢◆造園景觀-乙級
選擇題 (66)
1. 1 英呎約等於 (A)30.48 公分 (B)30.54 公分 (C)33.3 公分 (D)25.4 公分 。
2. 如圓之直徑為 D,則圓周長為 (A)πD (B)2πD (C)πD2 (D)πD3 。
3. 1 公尺約等於 (A)0.3 台尺 (B)3 台尺 (C)3.3 台尺 (D)10 台尺 。
4. 1 英呎等於 (A)6 英吋 (B)8 英吋 (C)10 英吋 (D)12 英吋 。
5. 鍍鋅鋼管在設計圖中常以下列英文縮寫何者表示? (A)CIP (B)RCP (C)PVC(D)GIP 。
6. 一般市售現成之磨石子地磚尺寸約為 (A)30cm×30cm (B)10cm×10cm (C)15cm×15cm (D)36cm×36cm 。
7. 下列規格何者最接近二丁掛磁磚? (A)3cm×11cm (B)6cm×11cm (C)3cm×23cm (D)6cm×23cm 。
8. 俗稱寸八方塊磁磚之邊長約為幾公分? (A)1.8 (B)5.5 (C)8.8 (D)10.8 。
9. 1 平方公尺約等於 (A)3.3 坪 (B)1.5 坪 (C)0.3025 坪 (D)0.01 坪 。
10. 1 坪等於 (A)1 台尺×1 台尺 (B)3 台尺×3 台尺 (C)6 台尺×6 台尺 (D)10 台尺×10台尺 。
11. 八分之一英吋換算為幾㎜? (A)2.54 (B)3.175 (C)6.6 (D)12.5 。
12. 1:2 水泥砂漿,表示一袋水泥拌合 (A)2 水泥袋之砂 (B)1 水泥袋砂 (C)100㎏之砂 (D)50 ㎏之砂 。
13. 貼馬賽克一坪約需使用 (A)11 才 (B)15 才 (C)36 才 (D)72 才 。
14. 貼馬賽克一平方公尺(M2)需使用 (A)11 才 (B)15 才 (C)36 才 (D)72 才 。
15. 20 ㎝×20 ㎝之磁磚,1 平方公尺用量約為 (A)30 塊 (B)25 塊 (C)6 才 (D)5才 。
16. 使用 109 ㎜×109 ㎜之面磚,每平方公尺約需幾塊(註:不包括損耗)? (A)100 (B)81 (C)70 (D)65 。
17. 109×109 ㎜磁磚填縫之寬度約為 (A)1~3 ㎜ (B)30~60 ㎜ (C)15~20 ㎜ (D)90~110 ㎜ 。
18. 1 坪約等於 (A)1 平方公尺 (B)1.2 平方公尺 (C)3.3 平方公尺 (D)36 平方公尺 。
19. 木料加工每一次裁切以 (A)1mm (B)3mm (C)5mm (D)10mm 計算損耗。
20. 二丁掛磚之面積約為一丁掛之 (A)1 倍 (B)2 倍 (C)2.5 倍 (D)1/2 倍 。
21.
Φ
13mm 鋼筋即為一般俗稱的 (A)#3 (B)#4 (C)#5 (D)#6 鋼筋。
22.
Φ
13mm 鋼筋之單位重量約為 (A)0.56 (B)0.99 (C)2.24 (D)1.55 kg/m。
23.
Φ
16mm 鋼筋即為一般俗稱的 (A)#3 (B)#4 (C)#5 (D)#6 鋼筋。
24.
Φ
19mm 鋼筋之單位重量約為 (A)0.56 (B)0.94 (C)2.25 (D)1.55 kg/m。
25. 土方運棄應以 (A)施工長度 (B)施工面積 (C)實方體積 (D)鬆方體積 計算。
26. 6cm×15cm×120cm 之木料約等於材積計算的 (A)4 才 (B)2.5 才 (C)40 才 (D)6才 。
27. 木材材積 1 才之體積約等於 (A)2100cm
3
(B)2700cm
3
(C)240cm
3
(D)300cm
3
。
28. 下圖基礎挖土之數量每單位長(m)約為
(A)0.5m
3
(B)0.9m
3
(C)1.2m
3
(D)1.5m
3
。
29. 下圖所需模版之數量每單位長(m)約為
(A)1m
2
(B)1.5m
2
(C)2.5m
2
(D)3m
2
。
30. 下圖所需鋼筋之數量每單位長(m)約為
(A)12kg (B)22kg (C)32kg (D)42kg 。
31. 下圖所需 210kgf/cm
2
混凝土之數量每單位長(m)約為
(A)0.15m
3
(B)0.28m
3
(C)0.44m
3
(D)0.55m
3
。
32. 下圖所需 140kgf/cm
2
混凝土之數量每單位長(m)約為
(A)0.05m
3
(B)0.15m
3
(C)0.25m
3
(D)0.5m
3
。
33. 下圖所需之木料數量每單位長(m)約為_____才。
(A)17 (B)27 (C)38 (D)45
34. 下圖舖面之每 1.5m 單位長所需之紅磚數量約為(紅磚尺寸:20×10×5cm)________塊。
(A)35 (B)55 (C)75 (D)85
35. 下圖舖面之每 1.5m 單位長所需之杉木板數量約為________才。
(A)5.5 (B)11 (C)25 (D)28
36. 下圖舖面之每 1.5m 單位長所需之卵石數量約為_________m
3
(A)0.08 (B)0.12 (C)0.23 (D)0.32。
37. 下圖舖面之每 1.5m 單位長所需之襯墊砂數量約為_______ m
3
。
(A)0.05 (B)0.12 (C)0.23(D)0.08
38. 下圖告示牌基礎所需之挖土數量約為________m
3
。
(A)0.2 (B)0.4 (C)0.6 (D)0.8
39. 下圖告示牌基礎所需之模板數量約為_______m
2
(A)1.6 (B)2.2 (C)3.6 (D)4.8 。
40. 下圖告示牌基礎所需之鋼筋數量約為_____kg。
(A)25 (B)40 (C)55 (D)78
41. 下圖告示牌基礎所需之 140kgf/cm
2
混凝土數量約為_______m
3
。
(A)0.038 (B)0.38 (C)0.6(D)0.06
42. 下圖告示牌基礎所需之 210kgf/cm
2
混凝土數量約為_______m
3
。
(A)0.027 (B)0.27 (C)0.67 (D)0.067
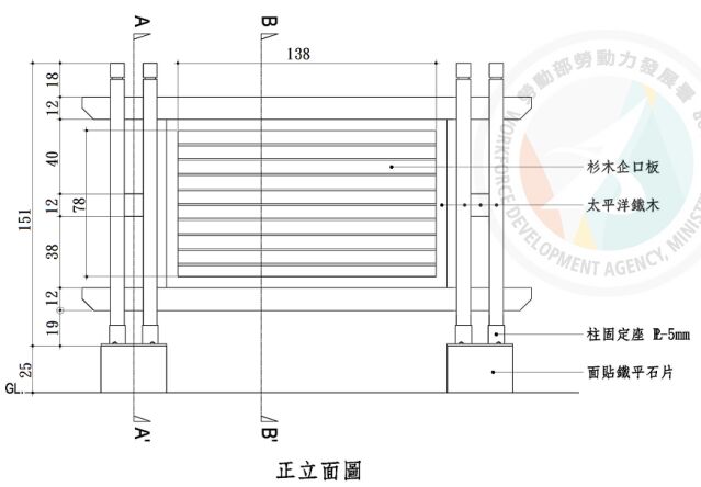
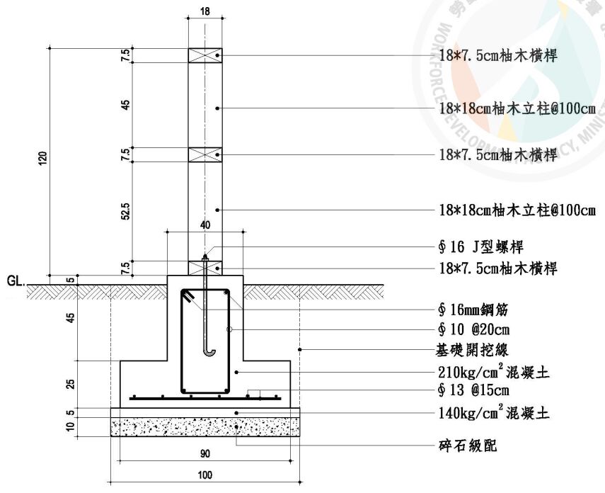
43. 下圖告示牌所需之杉木企口板數量約為_______才。
(A)25 (B)38 (C)56 (D)65
44. 下圖告示牌所需之太平洋鐵木數量約為______才。
(A)35 (B)45 (C)53 (D)68
45. 下圖告示牌基礎貼鐵平石之數量約為______ m
2
。
(A)0.5 (B)0.7 (C)0.9 (D)1.1
46. 依據圖面計算所需之木料為 100 材時,如木料裁切之損耗率為 20%,則實際所需估算之木料應為約 (A)120 (B)150 (C)180 (D)200 材。
47. 一般而言,於不規則平面上貼地磚時,以下敘述何者不適當? (A)地磚之單元尺寸愈大,損耗率愈高 (B)損耗率與地磚尺寸無關 (C)儘可能採用較小規格之地磚,以減少裁切損耗 (D)地磚的規格愈小,勾縫愈多 。
複選題
48. 請參考下圖混凝土獨立基礎圖進行工料估算,則下列敘述哪些為正確?
(A)
Φ
16 ㎜鋼筋單支所需長度約 68 ㎝ (B)
Φ
10 ㎜鋼筋加工裁切前應計入彎鉤長度 (C)
Φ
16 ㎜鋼筋共需 12 支 (D)
Φ
13 ㎜鋼筋的單支所需長度約 65 ㎝ 。
複選題
49. 請參考下圖混凝土獨立基礎圖進行工料估算,則下列敘述哪些為正確?
(A)
Φ
13 ㎜鋼筋所需長度共約 3.25m (B)
Φ
13 ㎜鋼筋共需 5 支 (C)140kg/cm
2
的混凝土用量約 0.036125 立方公尺 (D)回填土應予夯實 。
複選題
50. 請參考下圖混凝土獨立基礎圖進行工料估算,則下列敘述哪些為正確?
(A)基礎挖土量約 0.4m
3
(B)基礎挖土深度約 55cm (C)所需模板數量約 2.5m
2
(D)基礎模板應採用清水模板 。
複選題
51. 請參考下圖混凝土獨立基礎圖進行工料估算,則下列敘述哪些為正確?
(A)210kgf/㎝
2
混凝土所需數量約 0.13 m
3
(B)混凝土澆置時應以水適當稀釋,以方便混凝土流動 (C)140kgf/㎝
2
混凝土所需數量約 2m
3
(D)混凝土澆置前應於基礎坑底適當以水濕潤 。
複選題
52. 請參考下圖人行步道剖面圖,如以構築每 1m 長度計算,則下列敘述哪些為正確?
(A)所需花崗石塊數量約 0.08m
3
(B)所需花崗石塊數量約 0.04m
3
(C)所需預鑄混凝土緣石約長 2m (D)所需預鑄混凝土緣石約長 1m 。
複選題
53. 請參考下圖人行步道剖面圖,如以構築每 1m 長度計算,則下列敘述哪些為正確?
(A)連鎖磚鋪設時應以鐵鎚敲擊磚面以調整水平 (B)鋪設襯墊砂後應適度澆水 (C)所需連鎖磚數量約 50 塊 (D)所需襯墊砂數量約 0.072 m
3
。
複選題
54. 請參考下圖盲溝剖面圖,估算施作每 1m 長度所需材料,則下列敘述哪些為正確?
(A)挖土量約 0.36m
3
(B)所需碎石約需 0.27m
3
(C)挖出的土量其鬆方與實方相等 (D)填入碎石後應再以細砂填滿碎石空隙 。
複選題
55. 請參考下圖盲溝剖面圖,估算施作每 1m 長度所需材料,則下列敘述哪些為正確?
(A)所需回填沃土約 0.5m
3
(B)所需不織布約需 2.25m
2
(C)不織布可以用防水布取代 (D)為加速排水,可於盲溝底層碎石中埋置透水管 。
複選題
56. 請參考下列清水磚矮牆剖面圖,估算施作每 1m 長度所需材料,則下列敘述哪些為正確?
(A)挖土量約 0.35m
3
(B)挖土量約 0.26m
3
(C)清水磚矮牆距離 GL 高度為 68cm (D)澆置 140kgf/cm
2
混凝土底層前應於坑底適度澆水濕潤 。
複選題
57. 請參考下列清水磚矮牆剖面圖,估算施作每 1m 長度所需材料,則下列敘述哪些為正確?
(A)本圖之磚牆厚度為 1B 磚牆 (B)磚工砌造時可使用桃型鏝刀 (C)1:3 水泥砂漿中應加入海菜粉拌合以增加黏性 (D)所需 140kgf/cm
2
混凝土 0.05m
3
。
複選題
58. 請參考下圖木製座椅平、立、剖面圖,估算所需材料,則下列敘述哪些為正確?
(A)所需螺桿數量為 6 支 (B)所需螺帽為 12 枚 (C)為避免固定螺桿凸出椅面,螺桿長度應少於 45 ㎝ (D)木料應進行防腐處理 。
複選題
59. 請參考下列階梯踏步剖面圖,估算施作每 1m 長度所需材料,則下列敘述哪些為正確?
(A)所需花崗石板約為 0.06m
3
(B)如紅磚為密接,則約需紅磚60 塊 (C)花崗石板表面宜加工為拋光面 (D)花崗石踏步鼻端可適度加工為倒角,以防止碰撞受損 。
複選題
60. 請參考下圖階梯踏步剖面圖,估算施作每 1m 長度所需材料,則下列敘述哪些為正確?
(A)每一踏步的級高為 15 ㎝ (B)紅磚間水泥砂漿勾縫應大於 2㎝ (C)如紅磚間的砂漿勾縫寬度為 1 ㎝,則約需紅磚 60 塊 (D)如踏步寬度為 365 ㎝,花崗石長度為 60 ㎝,砂漿勾縫寬度為 1 ㎝,則需花崗石 24塊 。
複選題
61. 請參考下列步道平面、剖面及分解圖,如不計損耗,請估算施作所需材料,則下列敘述哪些為正確?
(A)所需方木約為 125 才 (B)所需樁木約為 21才 (C)於礫石較多區域,樁木施工可以挖穴法取代敲擊貫入法施作 (D)圖示之方木搭接法為單缺口搭接 。
複選題
62. 請參考下圖步道平面、剖面及分解圖,如不計損耗,請估算施作所需材料,則下列敘述哪些為正確?
(A)依圖示規定,可使用圓木取代方木 (B)步道作法在設計時,可使用圓木樁取代方型樁木 (C)止草布約需 5.4m
2
(D)所需碎石約為 0.65m
3
。
複選題
63. 請參考下列告示牌立面及剖面圖,如不計損耗,請估算施作所需材料,則下列敘述哪些為正確?
(A)所需太平洋鐵木約為 35 才 (B)所需
Φ
13 ㎜螺桿共4 枚 (C)太平洋鐵木的防腐處理一般採用真空加壓法 (D)每一枚
Φ
13 ㎜螺桿的長度約為 35cm 。
複選題
64. 請參考下圖告示牌立面及剖面圖,如不計損耗,請估算施作所需材料,則下列敘述哪些為正確?
(A)基礎所需開挖土方約 0.36m
3
(B)基礎所需回填土方約 0.173m
3
(C)每一立柱需鑽
Φ
13 ㎜螺桿插入孔 2 孔 (D)所需 J 型螺桿共4 枚 。
複選題
65. 請參考下圖告示牌立面及剖面圖,如不計損耗,請估算施作所需材料,則下列敘述哪些為正確?
(A)所需柳杉板料約需 7.7 才 (B)預鑄基礎所需混凝土約 0.5m
3
(C)柳杉板料塗刷護木漆時,所需護木漆施作面積約為 1.4m
2
(D)預鑄混凝土基座需於施工現場組立基礎模板 。
複選題
66. 請參考下圖告示牌立面及剖面圖,如不計損耗,請估算施作所需材料,則下列敘述哪些為正確?
(A)每一承壓版上各焊接一片固定片 (B)依據圖示作法,J 型螺桿為預埋於混凝土基座 (C)承壓版長寬為 33*33 ㎝,厚度為 10㎜ (D)固定片長寬為 12*7.5 ㎝,厚度為 10 ㎜ 。
申論題 (0)
相關試卷
114年 - 13600 造園景觀 乙級 工作項目 07:維護管理 51-81(2025/12/19 更新)#135395
114年 · #135395
114年 - 13600 造園景觀 乙級 工作項目 07:維護管理 1-50(2025/12/19 更新)#135394
114年 · #135394
114年 - 13600 造園景觀 乙級 工作項目 06:水電施工管理 1-47(2025/12/19 更新)#135393
114年 · #135393
114年 - 13600 造園景觀 乙級 工作項目 05:非植栽材料施工 1-61(2025/12/19 更新)#135392
114年 · #135392
114年 - 13600 造園景觀 乙級 工作項目 04:植栽材料施工 51-107(2025/12/19 更新)#135391
114年 · #135391
114年 - 13600 造園景觀 乙級 工作項目 04:植栽材料施工 1-50(2025/12/19 更新)#135390
114年 · #135390
114年 - 13600 造園景觀 乙級 工作項目 03:基地放樣及整地 1-62(2025/12/19 更新)#135389
114年 · #135389
114年 - 13600 造園景觀 乙級 工作項目 02:材料及機工具之應用 51-109(2025/12/19 更新)#135388
114年 · #135388
114年 - 13600 造園景觀 乙級 工作項目 02:材料及機工具之應用 1-50(2025/12/19 更新)#135387
114年 · #135387
114年 - 13600 造園景觀 乙級 工作項目 01:製圖 101-136(2025/12/19 更新)#135386
114年 · #135386