阿摩線上測驗
登入
首頁
>
技檢◆視覺傳達設計-丙級
> 115年 - 20100 視覺傳達設計 丙級 工作項目 05:圖學 1-50(2026/01/07 更新)#136400
115年 - 20100 視覺傳達設計 丙級 工作項目 05:圖學 1-50(2026/01/07 更新)#136400
科目:
技檢◆視覺傳達設計-丙級 |
年份:
115年 |
選擇題數:
50 |
申論題數:
0
試卷資訊
所屬科目:
技檢◆視覺傳達設計-丙級
選擇題 (50)
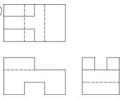
1. 如左圖
,以下三視圖何者正確?(A)
(B)
(C)
(D)
。
2.
以下三視圖何者正確? (A)
(B)
(C)
(D)
。
3.
以下三視圖何者正確? (A)
(B)
(C)
(D)
。
4.
以下三視圖何者正確? (A)
(B)
(C)
(D)
。
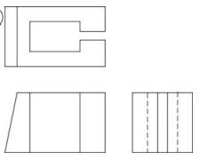
5.
以下三視圖何者正確? (A)
(B)
(C)
(D)
。
6.
以下三視圖何者正確? (A)
(B)
(C)
(D)
。
7.
以下三視圖何者正確?(A)
(B)
(C)
(D)
。
8.
以下三視圖何者正確? (A)
(B)
(C)
(D)
。
9.
以下三視圖何者正確? (A)
(B)
(C)
(D)
。
10.
以下三視圖何者正確? (A)
(B)
(C)
(D)
。
11.
左立體圖形之三視圖下列何者正確? (A)
(B)
(C)
(D)
。
12.
以下三視圖何者正確? (A)
(B)
(C)
(D)
。
13.
以下三視圖何者正確? (A)
(B)
(C)
(D)
。
14.
以下三視圖何者正確? (A)
(B)
(C)
(D)
。
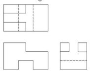
15.
如左圖,下列三視圖何者正確?(A)
(B)
(C)
(D)
。
16.
以下三視圖何者正確? (A)
(B)
(C)
(D)
。
17.
如左圖,以下三視圖何者正確?(A)
(B)
(C)
(D)
。
18.
以下三視圖何者正確? (A)
(B)
(C)
(D)
。
19.
以下三視圖何者正確? (A)
(B)
(C)
(D)
。
20.
以下三視圖何者正確? (A)
(B)
(C)
(D)
。
21. 製圖紙 A1 的尺寸為 (A)841×1189 ㎜ (B)650×880 ㎜ (C)594×841 ㎜ (D)450×650 ㎜ 。
22. 投影箱展開後可得幾個視圖 (A)3 個 (B)4 個 (C)5 個 (D)6 個 。
23. 三角形柱的視圖採用 (A)半視圖 (B)單視圖 (C)兩視圖 (D)三視圖 。
24. 將對稱物體切割四分之一的剖面表示法是 (A)全剖面 (B)半剖面 (C)旋轉剖面(D)移轉剖面 。
25. 輔助視圖中的 RP 是代表 (A)水平面 (B)垂直面 (C)參考面 (D)傾斜面 。
26. μm 是 (A)1/1000m (B)1/1000 ㎜ (C)1/100 ㎜ (D)1/10000m 。
27. 為避免尺寸界限相交,長尺寸應置於短尺寸之 (A)內 (B)外 (C)中 (D)右 。
28. 一般公制圓錐銷的錐度為 (A)1:10 (B)1:20 (C)1:50 (D)1:100 。
29. 等角畫立體圖與等角投影立體圖是 (A)形狀相同大小亦相同 (B)大小不同形狀亦不同 (C)大小不相同而形狀相同 (D)形狀不同大小相同 。
30. 正投影三視圖中主要的三個視圖為 (A)前視圖、仰視圖、側視圖 (B)前視圖、俯視圖、右側視圖 (C)前視圖、底視圖、左側視圖 (D)前視圖、仰視圖、背視圖 。
31. 30°±15 就合格的範圍為 (A)29°85'~30°15' (B)29°45'~30°15' (C)29°45'~30°30' (D)29°55'~30°15' 。
32. 甚薄材料剖切時,其剖切面 (A)照畫剖面線 (B)全部塗黑 (C)全部空白 (D)不剖切 。
33. 兩平面相交可得一 (A)圓 (B)錐線 (C)直線 (D)橢圓 。
34. 視圖中斜面之真實形狀表現在 (A)上視圖中 (B)剖面圖中 (C)輔視圖中 (D)展開圖中 。
35. 斜投影圖中,垂直於投影面之圓或圓弧為 (A)擺線 (B)螺旋線 (C)橢圓曲線 (D)圓錐曲線 。
36. 設一 n 邊形則至少可將此 n 邊形分成 (A)n-2 (B)n (C)n-1 (D)n+2 個三角形。
37. 正 12 面體之展開,表面為 12 個 (A)正三角形 (B)正方形 (C)正五邊形 (D)正六邊形 。
38. 正 24 面體之展開,表面為 24 個 (A)正三角形 (B)正方形 (C)正六邊形 (D)正八邊形 。
39. 剖切一圓錐體所得之四平面曲線為 (A)雙曲線、拋物線、圓、漸開線 (B)圓、橢圓、拋物線、雙曲線 (C)擺線、雙曲線、漸開線、圓 (D)圓、拋物線、螺旋線、雙曲線 。
40. 下列那一個名稱為非標準組織的簡稱 (A)CNS (B)JIS (C)FDS (D)ISO 。
41. 角柱與圓柱使用平行線展開法可得 (A)矩形 (B)圓形 (C)橢圓形 (D)菱形 。
42. 註解圓孔用之箭頭,其指線應當通過圓之 (A)切線 (B)邊線 (C)中心 (D)不拘 。
43. 視圖垂直於某一平面時,則該平面顯現真實形狀、大小,可使用 (A)剖面圖(B)展開圖 (C)立體圖 (D)輔助視圖 。
44. 兩線所夾之角低於 90°是謂 (A)鈍角 (B)銳角 (C)直角 (D)非角 。
45. 何者在投影面上無法獲得真實的形狀 (A)點 (B)線 (C)平面 (D)歪面 。
46. 直線與投影面垂直,其正投影為一點,稱為該直線 (A)斜視圖 (B)端視圖 (C)透視圖 (D)邊視圖 。
47. 輔視圖上所顯示的,為其從所投影之鄰接視圖上之尺寸,所不能顯示出的主要是 (A)長度 (B)深度 (C)高度 (D)實形大小 。
48. 圖學的要素是 (A)正投影與斜投影 (B)英文字及仿宋字 (C)線條及文字 (D)美術圖及工程圖 。
49. 學習圖學的目的在於 (A)看圖 (B)讀圖與製圖 (C)畫圖 (D)學習畫圖方式 。
50. 繪圖紙必須 (A)只要白,不計其他 (B)粗糙且較厚紙張 (C)色白而不刺目,紙質堅韌,不易起糙 (D)光滑而帶色澤 。
申論題 (0)
相關試卷
115年 - 20100 視覺傳達設計 丙級 工作項目 06:設計基礎 51-101(2026/01/07 更新)#136403
115年 · #136403
115年 - 20100 視覺傳達設計 丙級 工作項目 06:設計基礎 1-50(2026/01/07 更新)#136402
115年 · #136402
115年 - 20100 視覺傳達設計 丙級 工作項目 05:圖學 51-101(2026/01/07 更新)#136401
115年 · #136401
115年 - 20100 視覺傳達設計 丙級 工作項目 04:廣告媒體 51-93(2026/01/07 更新)#136399
115年 · #136399
115年 - 20100 視覺傳達設計 丙級 工作項目 04:廣告媒體 1-50(2026/01/07 更新)#136398
115年 · #136398
115年 - 20100 視覺傳達設計 丙級 工作項目 03:印刷概要 51-105(2026/01/07 更新)#136397
115年 · #136397
115年 - 20100 視覺傳達設計 丙級 工作項目 03:印刷概要 1-50(2026/01/07 更新)#136396
115年 · #136396
115年 - 20100 視覺傳達設計 丙級 工作項目 02:攝影 51-92(2026/01/07 更新)#136395
115年 · #136395
115年 - 20100 視覺傳達設計 丙級 工作項目 02:攝影 1-50(2026/01/07 更新)#136394
115年 · #136394
115年 - 20100 視覺傳達設計 丙級 工作項目 01:色彩學 51-116(2026/01/07 更新)#136393
115年 · #136393