所屬科目:技檢◆造園景觀-乙級
1. 抽水所需之功率常以馬力計,其換算式為 1KW 是 (A) 0.90Hp (B) 0.75Hp (C) 0.80Hp (D) 0.70Hp。
2. 比例尺 1/50 的圖面量得 3 公分等於實際尺寸 (A) 15 公尺 (B) 1.5 公尺 (C) 30 公尺 (D) 3 公尺。
3. 百慕達草撒播法,每平方公尺播種多少公克種子?(A) 30 公克 (B) 40 公克 (C) 50 公克 (D) 20 公克。
4. 有關生態性景觀舖面之敘述,下列何項不正確 (A) 透水性連鎖磚鋪面施工層應包含水泥砂漿層、透水性連鎖磚層 (B) 透水材料舖面有利於暴雨水之管理 (C) 生態式停車場,路基可施作碎石級配及襯墊砂層後,舖透水性連鎖磚或植草磚 (D) 植草磚舖面材料具良好孔隙性,透水性及減少土壤逕流並增加綠覆率。
5. 「裸根法」移值適合下列何種植物?(A) 木棉 (B) 黑松 (C) 樟樹 (D) 竹類。
6. 刮運機 (Scraper) 係屬於何種機械?(A) 起重 (B) 整地 (C) 挖溝槽 (D) 運貨。
7. 景觀營造勞工作業場所所戴安全帽之材質,係由_____所構成。(A) 合成樹脂 (B) 不銹鋼 (C) 棉質 (D) 塑膠
8. 在不考慮用途,只考慮形狀,哪種材料最不適合施作於下圖的平面形狀?(A) 磚石片 (B) 混凝土 (C) 柏油 (D) 礫石。
9. 移植樹木,要先斷根處理,其不適合期為 (A) 春季發芽期 (B) 春季萌芽後 (C) 秋冬季節 (D) 夏季。
10. 下述景觀用植物中,何者不屬於一、二年生草花類植物 (A) 百日草 (B) 一串紅 (C) 香石竹 (D) 萬壽菊。
11. 1 坪約等於 (A) 1.2 平方公尺 (B) 1 平方公尺 (C) 3.3 平方公尺 (D) 36 平方公尺。
12. 一般漏電斷路器不具備下列何項保護能力 (A) 接地 (B) 漏電 (C) 短路 (D) 過載。
13. 舖設人行坡道時,在兩平台或平面之間,一條坡道的長度最好不要超過多少? (A) 15m (B) 9m (C) 7m (D) 3m。
14. 以下何者為香花植物 (A) 番茉莉 (B) 馬齒牡丹 (C) 紅桂木 (D) 馬蘭。
15. 生態池施工完後,應 (A) 放任自然且不必管理 (B) 應常刷洗 (C) 持續人工放養 (D) 經常檢查並做必要之維護。
16. 基地整地前應先確實找出的項目,下列何者為非必要 (A) 基地放樣基準點 (B) 基地水平基準點 (C) 基地中心點 (D) 基地方位。
17. 下圖告示牌所需之太平洋鐵木數量約為_____材。 (A) 68 (B) 53 (C) 35 (D) 45
18. 就 A2 的圖紙而言,其尺寸是____mm。 (A)210×297 (B)594×841 (C)420×594 (D)841×1189
19. 下列何種草坪耐陰性最好?(A)地毯草 (B)百慕達草 (C)台北草 (D)百喜草。
20. 依勞工安全衛生法令規定,對於多少公斤以上之物品以機動車輛或其他機械搬運為宜?_____公斤。(A)30 (B)50 (C)40 (D)200
21. 下列何項鋪面為透水性鋪面?(A)密級配瀝青混凝土 (B)混凝土製品植草磚 (C)窯燒花崗石英磚 (D)傳統水泥混凝土。
22. 等高間距是:(A)兩等高線間的整數垂直距離 (B)兩等高線間之水平距離 (C)兩等高線間的不同的垂直距離 (D)等高線與參考平面間的垂直距離。
23. 景觀製圖用紙依 CNS 規定,Ao 之尺寸為 (A)1030mm×1456mm (B)594mm×841mm (C)841mm×1189mm (D)728mm×1030mm。
24. 大多數園藝作物生長的土壤,其 pH 值宜在:(A)6-7 (B)4-5 (C)3-4 (D)8-9。
25. 貼馬賽克一坪需使用 (A)36 才 (B)15 才 (C)72 才 (D)11 才。
26. 粉刷前混凝土底地鏝塗純水泥漿宜使用 (A)桃形鏝刀 (B)鋼鏝刀 (C)鋸齒鏝刀 (D)橡皮鏝刀。
27. 有關蚜蟲、螞蟻與瓢蟲的敘述何者有誤?(A)並非所有瓢蟲都是蚜蟲的天敵 (B)蚜蟲與螞蟻之間的生態關係為「互利共生」 (C)多數瓢蟲都是以掠補蚜蟲為食 (D)螞蟻幫助蚜蟲主要為獲取蚜蟲分泌的蜜液,但必要時也會以蚜蟲為食物。
28. 符號"RCP"係代表 (A)塑膠管 (B)鋼筋混凝土管 (C)鉛管 (D)不銹鋼管。
29. 實施安全衛生檢查以後必須採取下列那一項措施始能達到防止職業災害,保障勞工安全與健康之目的:(A)務使確實改善 (B)聘請專家指導 (C)提出檢查報告 (D)召開研討會。
30. 落葉喬木的修剪適期 (A)1~3 月 (B)4~6 月 (C)6~8 月 (D)8~10 月。
31. 以製圖線法下列何者是中心線?(A) (B) (C) (D) 。
32. 理想的座位靠背,從坐面算起應有多高?(A)75cm (B)60cm (C)100cm (D)90cm。
33. 下述景觀用植物中,何者不屬於本地原生種植物?(A)牛奶榕 (B)沙朴 (C)黑板樹 (D)鐵冬青。
34. 缺氧場所不可使用何種防護具?(A)空氣呼吸器 (B)防毒面罩 (C)輸氣管面罩 (D)氧氣呼吸器。
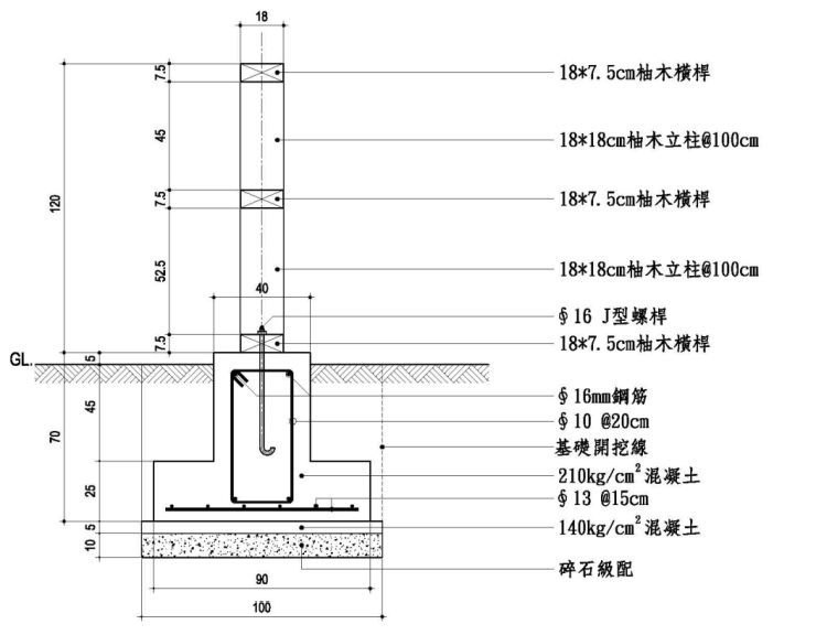
35. 下圖所需鋼筋之數量每單位長(m)約為 (A)12kg (B)42kg (C)32kg (D)22kg。
36. 以下各項資料,何者為景觀建築平面圖上所不必標示者:(A)比例尺 (B)尺寸 (C)造價 (D)圖名。
37. 修剪綠籬之程序最好為 (A)修枝剪修剪→清掃→澆水 (B)修枝剪修剪→清掃 (C)澆水→修枝剪修剪→清掃 (D)清掃→修枝剪修剪→澆水。
38. 景觀營造事業單位之勞工健康檢查費用係由何人負擔?(A)雇主百分之百 (B)雇主負擔百分之五十,勞工負擔百分之五十 (C)勞工百分之百 (D)雇主負擔百分之八十,勞工負擔百分之二十。
39. 有關景觀用蔓性草本性狀之敘述,下述中何者是不正確?(A)蔦蘿及香碗豆都是蔓性草本 (B)常春 籐及牽牛花都是蔓性草本(C)矮牽牛及蔦蘿都是蔓性草本(D)黑眼花與康乃馨都是蔓性草本。
40.1英呎等於(A)16英吋(B)12英吋(C)8英吋(D)10英吋。
41.繪製景觀圖之日照分析表與日照圖時,在台灣地區,一年中,哪一天可以量得某幢建築物, 在中午時北邊方向最長的陰影:(A)冬至日(B)夏至日(C)中秋節(D)端午節。
42.從事5公尺以上未滿 20 公尺之景觀營造高架作業,工作2小時中,至少應有_____分鐘之休息。(A)35(B)20(C)30 (D)25
43. 台灣松樹類植物廣受線蟲病為害所困,其中(A)黑松(B)濕地松(C)琉球松及馬尾松(D)台灣二葉松 及五葉松具有抗線蟲為害的特性。
44. 對修剪用尖銳工具的傳遞方式,下列敘述何者正確?(A)可互相拋擲(B)可由高處丟下(C)刀口向外(D)以工具袋裝妥。
45. 草坪修剪必須謹守 1/3的原則,才不至於對草坪的生育造成嚴重的損害或傷害到草坪的品質, 請問所謂 1/3的原則下列敘述何者有誤(A)每次剪草不可超過葉片長度的1/3(B)地上部保留高 度為地下根部深度的1/3(C)剪去高度為總高度的1/3(D)修剪後最多只保留 1/3 草屑在草坪上。
46. 1 Ø 3W 表示電氣配電系統為(A)單相三線式(B)三相單線式(C)單相單線式(D)雙相單線式。
47. 大型喬木枝條修剪最終完成切面應為(A)距分岔點5-10公分處水平方向(B)自分岔點所形成的脊線開始之水平切面(C)距分岔點10-20公分處垂直方向(D)緊貼分岔點所形成的脊線-領環之切線。
48.平戶杜鵑每年2-3月為開花期,請問其修剪作業應在每年的_____進行較不會影響來年開花。(A)5-6月(B)1-2月(C)9-10月(D)11-12月
49. 混凝土中粗骨材之最大粒徑不得大於鋼筋間或鋼筋與模板間最小淨距之(A)2/3(B)4/5(C)1/2(D)3 /4。
50.以下何種景觀灌溉系統需加設過濾設備(A)散水式噴頭(B)衝擊式旋轉噴頭(C)滴灌系統(D)均無需設置。
51. 永久性空地指不得建築或因實際天然地形不能建築之土地,但不包括(A)海洋、湖泊、河川(B) 道路(C)綠地、綠帶、及其他空地(D)廣場、公園。
52.為防止墜落災害,有關喬木修剪用固定梯子應注意事項,下列何者正確?(A)梯子之頂端應突 出板面60公分以上(B)梯長連續超過6公尺時,應每隔12公尺以下設一平台(C)踏條與牆壁間 之淨距不得超過15公分(D)未設護籠或其他保護裝置,應每隔9公尺以下設一平台。
53.依我國國家標準 CNS 標準總號:382,標準類號:R2002規定,燒成磚之品質達到一級磚其 抗壓強度需在(A) 120kg/cm²(B)150kg/cm²(C)100kg/cm²(D)180kg/cm²。
54.下列何者非種植樹木的植穴良好環境(A)中性的土壤的鹼度(B)透氣性良好的土質(C)蓄水性良好 的土質(D)粗細不一的團粒結構。
55.人們感到完全封閉時其四周坡面及水平線形成的視覺圓錐為何:(A)25℃~30℃(B)45°以上(C)0°~10 °(D)10°~25°。
56.年年春(嘉磷塞異丙胺鹽)與巴拉刈是兩種常用的殺草劑,請問下列對兩種藥劑的敘述何者錯 誤?(A)兩種均為非選擇性殺草劑都具有廣效性之優點(B)年年春經由植物的葉片和莖部進入植 物體內,影響其酵素系統,造成植株死亡(C)使用巴拉刈應灌注在土壤中使其由雜草根部吸收 (D)巴拉刈之作用機制為干擾光合作用中的電子傳遞。
57. 放樣符號─∨─是表示(A)錯誤線(B)轉移線(C)正確線(D)中心線。
58.繪景觀正影視圖時,必需先考慮的是(A)圖的佈局和比例(B)強調細部特徵(C)仔細畫出標題(D)找 出中心線。
59. 繪素描用的鉛筆中 6H代表著(A)軟而淡(B)黑而淡(C)硬而淡(D)黑而軟。
60. 建築法規定在一基地上建造駁嵌時必須申辦何種執照?(A)建造執照(B)雜項執照(C)修建執照(D) 增建執照。
61. 景觀建築基地結構體完成鷹架圍籬拆除後,整理環境時於借用道路範圍內須如何處理?(A)置妥2公尺拒馬(B)1.2公尺拒馬(C)不必置拒馬(D)置1.5公尺拒馬。
62. 下列針對鏈鋸的敘述何者正確(A)機器上的潤滑油箱中的潤滑油為引擎潤滑用(B)發動引擎時應先關上阻風開關(C)鋸喬木粗側枝時應一刀鋸斷(D)鋸木時應用力施壓鏈鋸於木頭上以增加效率。
63. 下圖基礎挖土之數量每單位長(m)約為(A)1.2m³(B)0.9m³(C)0.5m³(D)1.5m³。
64.一平方公尺約等於(A)0.01坪(B)3.3坪(C)0.3025坪(D)1.5坪。
65. 景觀中文工程字依 CNS 規定,採用(A)明體(B)粗黑體(C)等線體(D)仿宋體。
66. 石材之抗壓強度在500kg/cm²以上,依其分類謂之(A)軟石(B)半軟石(C)硬石(D)半硬石。
67.下圖的坡度為何:(A)1:3(B)33%(C)33°(D)12:1。
68.下列何種牆面,粉刷前不可塗鏝一層水泥漿(A)紅磚牆(B)混凝土空心磚牆(C)混凝土牆(D)已粉刷過之牆。
69. 物體離投影面愈遠,則其正投影應為(A)變大(B)不變(C)變小(D)變歪。
70.一、二年生草本花卉設計及種植之原則下列何者為正確?(A)種植時應越密植越好以免死亡缺株時被發現(B)在設計時應考量後續更換之方便性,及更換時對於周邊固定之景觀及植栽破壞性越少越好(C)種在較高的灌木後方隱藏起來,以免被人發現拔走(D)種植時應刻意挑選尚未開花之植株可慢慢成長減少更換次數。
71. 使用紅磚為鋪面材料,依 CNS 規定一級品紅磚,其最小抗壓強度為(A)50kg/cm²(B)80kg/cm²(C)100kg/cm²(D)150kg/cm²。
72. 草坪的施肥管理應於春季~夏季生長旺季期間施予(A)過磷酸石灰(B)氯化鉀(C)尿素(D)海鳥磷肥。
73.下列何種草坪發芽適溫為28~33℃(A)高狐草(B)台北草(C)黑麥草(D)小糠草。
74. 刺桐類開紅花且花期最長的是(A)珊瑚刺桐(B)雞冠刺桐(C)黃脈刺桐(D)火炬刺桐。
75. 為了行走的舒適,理想的戶外階梯尺寸是:(A)級高 18cm(B)級高 15cm(C)級高 13cm(D)級高 20cm。
76. 製圖投影圖法中,將視圖繪於物體之前的投影面,是屬於(A)第一角法(B)第三角法(C)第四角法(D)第二角法。
77. 直徑長度6m,則圓心角60°之弧長為(A)2πm(B)3 πm(C)6πm(D)πm。
78._____何種裸子植物較容易移植。(A)檜(B)落羽松(C)杉(D)黑松
79.已知左ˋ圖之右側視圖為(A) (B) (C) (D) 。
80.杜鵑葉蜂常在春天羽化後產卵於葉片組織內,一旦有大危害發生,翌年之開花狀況有時花量 大減,有時甚至無法開花,其幼蟲多半進入土中或土表堆積之枯葉上化作菌蛹,應透過_____來減少為害及發生。(A)中耕並清除落葉(B)修剪(C)灌水(D)施肥