阿摩線上測驗
登入
首頁
>
技檢◆造園景觀-乙級
> 104年 - 造園景觀 乙級 工作項目 01:製圖(1-99)#26907
104年 - 造園景觀 乙級 工作項目 01:製圖(1-99)#26907
科目:
技檢◆造園景觀-乙級 |
年份:
104年 |
選擇題數:
99 |
申論題數:
0
試卷資訊
所屬科目:
技檢◆造園景觀-乙級
選擇題 (99)
1. 於比例尺 1/500 之設計圖上,23 平方公分之面積相當於實際上庭園面積若干?(A)1150 平方公尺(B)621 平方 公尺(C)575 平方公尺(D)529 平方公尺。
2. 景觀製圖用紙依 CNS 規定,A0 之尺寸為(A)1030mm×1456mm(B)728mm×1030mm(C)841mm×1189mm(D)594mm× 841mm。
3. 景觀製圖所用線條之粗細,約可區分為粗線、中線、細線三種,粗線應用於畫(A)註解線(B)隱藏之輪廓線(C) 剖面線(D)折斷線。
4. 已知景觀原圖比例尺為 1/2000,欲將其放大為 1/1000 比例尺圖時,其景觀圖上圖幅面積為原來之(A)1/4 倍 (B)1/2 倍(C)2 倍(D)4 倍。
5. 目前一般景觀工程圖之標題欄都設於圖面下方或右側,以載明圖樣內容的諸項資料,一般來說不包含以下 何者:(A)工程名稱與圖名(B)圖樣編號與日期(C)業主姓名及工程造價(D)比例尺及單位。
6. 於比例尺為 1/1000 之地形圖上,量得一長方形之某塊地,其長為 20mm,寬為 10mm,求此塊地之實地面 積為若干「坪」(A)6.05 坪(B)60.5 坪(C)66.1 坪(D)661 坪。
7. 庭園面積 100 平方公尺相當於(A)0.3025 坪(B)3.025 坪(C)30.25 坪(D)302.5 坪。
8. 以下各項資料,何者為景觀建築平面圖上所不必標示者?(A)圖名(B)比例尺(C)尺寸(D)造價。
9. 繪製景觀圖之日照分析表與日照圖時,在台灣地區,一年中,哪一天可以量得某幢建築物,在中午時北邊 方向最長的陰影:(A)端午節(B)夏至日(C)中秋節(D)冬至日。
10. 欲去除兩鄰近的線中的其中之一時,除利用橡皮擦以外還會利用到(A)三角板(B)丁字尺(C)擦線板(D)曲線板。
11. 用來裝上圓規的鉛筆心大都是(A)軟性(B)硬性(C)中性(D)脆性。
12. 景觀中文工程字依 CNS 規定,採用(A)仿宋體(B)明體(C)粗黑體(D)等線體。
13. 書寫景觀英文工程字時,兩單字之間以能放入哪一個英文字母為原則?(A)H(B)O(C)C(D)G。
14. 植物學名斜體英文工程字約傾斜(A)75 度(B)72 度(C)80 度(D)85 度。
15. 所謂庭園平行透視,就是(A)等角投影圖法(B)正投影圖法(C)兩點透視圖法(D)一點透視圖法。
16. 長折線中兩銳角的角度約為(A)15 度(B)30 度(C)45 度(D)60 度。
17. 畫虛線時,間隔應約(A)1mm(B)2mm(C)3mm(D)20mm。
18. 正視圖與俯視圖畫在同一個圖面上,通常正視圖固定,而將俯視圖旋轉(A)60 度(B)30 度(C)90 度(D)75 度。
19. 景觀等角圖的畫法,事先畫出三相交於一點的線且互相間的夾角是(A)90 度(B)60 度(C)180 度(D)120 度。
20. 下列何者為不適用繪製垂線的工具(A)三角板(B)圓規(C)量角器(D)雲形尺。
21. 正投影圖之投影線應為(A)集中一點(B)平行(C)垂直(D)集中於兩點。
22. 若多層的景觀尺寸標示時,每條尺寸線間的距離約為字高的(A)1/2 倍(B)2 倍(C)4 倍(D)3 倍。
23. 以下有關數字與尺寸線的敘述中,哪一個是錯誤的?(A)書寫數字時,尺寸線必須中斷(B)數字與尺寸線垂直 (C)數字大約放置於尺寸線中央位置上方(D)數字應避免與尺寸線相交。
24. 指線與水平線之間,通常呈(A)15 度(B)30 度(C)45 度(D)75 度 的夾角。
25. 「
」的符號代表的是(A)邊長(B)直徑(C)半徑(D)弧長。
26. 一個物體,如果想以正投影法表示空間,至少需標明幾個投影面?(A)1 個(B)2 個(C)3 個(D)4 個。
27. 若直線和水平投影面垂直,則在正投影中可顯現出(A)點(B)斜線(C)平面(D)直線實長。
28. 依正投影的製圖原理,則前視圖與後視圖對實物的長度應(A)等長(B)不等長(C)看情況而定(D)縮短。
29. 一個製圖投影箱展開後,共有幾個視圖(A)4 個(B)5 個(C)6 個(D)7 個。
30. 物體離投影面愈遠,則其正投影應為(A)不變(B)變大(C)變小(D)變歪。
31. 繪景觀正投影視圖時,必需先考慮的是(A)圖的佈局和比例(B)強調細部特徵(C)找出中心線(D)仔細畫出標題。
32. 依景觀製圖線法,下列何者為「長折線」?(A)
(B)
(C)
(D)
。
33. 製圖投影圖法中,將視圖繪於物體之前的投影面,是屬於(A)第一角法(B)第二角法(C)第三角法(D)第四角法。
34. 用於畫割面線的是(A)
(B)
(C)
(D)
。
35. 當景觀圖面上有灰塵和橡皮屑時,最好的清除方法是(A)用抹布擦拭(B)用手輕拍清除(C)用毛刷輕拭(D)用衛生 紙擦拭。
36. P.V.C 管之規格註明為 2"×3.5mm,其中 3.5mm 是指(A)管徑(B)管壁厚(C)長度(D)餘裕量。
37. 景觀圖面上地界線之表示法為(A)
(B)
(C)
(D)
。
38. 景觀建築物正面為向南方,則其背立面圖也可稱為(A)東向立面圖(B)西向立面圖(C)南向立面圖(D)北向立面 圖。
39. 景觀構造建築物之剖面線(A)可以為轉折之直線(B)一定非一直線(C)一定為曲線(D)一定為折線。
40. 景觀剖面圖係為瞭解建築物內部與室外何種關係的圖面(A)基地高低(B)建蔽率(C)通路情形(D)地質狀況。
41. 最能表現整棟景觀建築物之各層高度、柱樑關係及垂直動線的是(A)平面圖(B)立面圖(C)牆剖面圖(D)總剖面 圖。
42. 畫直線時,鉛筆和紙面需呈(A)15 度(B)30 度(C)45 度(D)60 度 之傾斜。
43. 使用 0.3mm 的針筆來繪製墨線時,所繪出的線徑是(A)0.2mm(B)0.3mm(C)0.5mm(D)0.8mm。
44. 就 A2 的圖紙而言,其尺寸是(A)210×297(B)420×594(C)594×841(D)841×1189 mm。
45. 利用鉛筆畫線時,為了使線條一致,鉛筆應該(A)下壓(B)垂直於紙面(C)稍微旋轉(D)改變方向。
46. 繪素描用的鉛筆中 6H 代表著(A)硬而淡(B)黑而軟(C)黑而淡(D)軟而淡。
47. 使用平行尺和三角板時,何者是錯?(A)時常擦拭(B)不可用小刀切割(C)不可放在潮濕的地面(D)不必密接。
48. 下列景觀製圖的原則,何者是錯?(A)清晰(B)整潔(C)正確(D)塗改。
49. 景觀製圖中文工程字的筆劃要求,以下何者為非?(A)清晰、正確(B)橫平豎直(C)行雲流水(D)端正美觀。
50. 字體的大小以何者來決定?(A)字體斜度(B)字體面積(C)筆劃粗細(D)字體寬高的比。
51. 下列何者不是製圖平行尺的正確描述?(A)作用與丁字尺相同(B)有木製、鋁製、不銹鋼製數種(C)是繪製圓形 的最佳工具(D)可裝置於繪圖板上。
52. 繪圖儀是一組組合功能的景觀製圖儀器,下列何者不是組合之一?(A)圓規(B)平行尺(C)三角板(D)量角器。
53. 使用字規可以使字體大小一致,使用時(A)選擇容易書寫的字(B)選擇自己認為最美的字體(C)選擇能配合圖面 大小的字(D)選擇結構複雜造型變化多的字。
54. 等高距是:(A)兩等高線間之水平距離(B)兩等高線間的整數垂直距離(C)兩等高線間的不同的垂直距離(D)等高 線與參考平面間的垂直距離。
55. 如下圖,整地圖上之 A 點在下述地形圖上位於:(A)排水洩洪道(B)高點(C)在挖方區域(D)在填方區域。
56. 下圖中等高線平面圖中的等高線間距為何?(A)1 公尺(B)2 公尺(C)5 公尺(D)10 公尺。
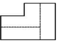
57. 下圖的精準坡度為何比率?(A)1:1(B)5:3(C)3:15(D)1:5。
58. 下圖的坡度為何?(A)3%(B)33°(C)12:1(D)1:3。
59. 下列坡度何者最陡?(A)1/2(B)4/12(C)20%(D)30%。
60. 如下圖之平面造型最宜安置於何種地貌?(A)平坦地(B)山脊(C)山谷(D)凸型地貌。
61. 如下圖之建築物立面圖最適於放置於何種地貌?(A)凹形地貌(B)山谷(C)平坦地(D)山脊。
62. 下列何種地貌具有容易誘引視者注意附近景觀潛力者?(A)凹形地貌(B)山谷(C)凸型地貌(D)平坦地。
63. 下列何種地貌允許設計者最自由利用?(A)凸型地貌(B)山谷(C)山脊(D)平坦地。
64. 以下何種地形具封閉且向內方位者?(A)山脊(B)山谷(C)凸型地貌(D)凹形地貌。
65. 如下圖,站在 C 點的 1.5 公尺高的人看向 J 點,下列敘述何者為真?(A)他可看到 J 點上 1.5 公尺高的人(B)他 可看到 H 點上 1.5 公尺高的旗杆(C)他可看到 J 點上 1.5 公尺高的人手擲 1.5 公尺高的旗杆(D)2.0 公尺高的醜 陋物體放在 J 點比 H 點好,因為較難看見。
66. 當四周坡面及水平線形成的視覺圓錐為何時,會使人們感到完全封閉?(A)0°~10°(B)10°~25°(C)25°~30°(D)45°以 上。
67. 如下圖人所站著的位置,哪兩點最能界定空間邊緣?(A)A 與 E(B)A 與 B(C)A 與 D(D)B 與 C。
68. 有一個嫌惡設施 A(不好看的 A)為 3 公尺高,假設觀賞者如圖所示為身高 1.8 公尺高,位於下圖之指定 點,則該設施安置於附圖中何處最為理想?(A)A 在 1(B)A 在 4(C)A 在 5(D)A 在 3。
69. 下圖中何點最適合安置 5 公尺高建築物而可得到最佳視野及與環境調合?(A)A(B)B(C)C(D)D。
70. 地貌自身的外觀何者為錯的?(A)通常一樣的(B)依光線的情況而變化(C)依四季的覆蓋而變化(D)依人為狀態 改變。
71. 如下圖所示的區域內,樹木應種植於什麼位置,才能顯現出地形以增加空間感?(A)A 與 C(B)B 與 D(C)B 與 C (D)C 與 E。
72. 下列哪一步道,走起來令人覺得步履平穩? (A)
(B)
(C)
(D)
。
73. 下面哪種平面設計,最能誘導人自 A 走向 B 點? (A)
(B)
(C)
(D)
。
74. 在一個平面區域設置舖面,不表示這舖面的功能是:(A)使空間加大(B)可將其他的設計因素予以統一(C)調和 背景(D)強調空間利用。
75. 如下剖面圖哪種舖面表面,最難行走? (A)
(B)
(C)
(D)
。
76. 如下平面示意圖哪種舖面形式,最能使人緩下腳步,並駐足留步? (A)
(B)
(C)
(D)
。
77. 戶外空間使用同一材質的舖面設計,並不具有下列哪一項功能?(A)將大空間分割成小空間(B)使實際上獨立 的物體,造成視覺上的連貫(C)消除直線直角的硬梆梆感覺(D)使空間看來比實際上要來得寬闊。
78. 在不考慮用途,只考慮形狀,哪種材料最不適合施作於下圖的平面形狀?(A)混凝土(B)礫石(C)磚石片(D)瀝青 混凝土。
79. 戶外階梯應該:(A)與室內階梯的比例相同(B)比室內階梯要陡(C)比室內階梯要窄而且長(D)比室內階梯級高要 低。
80. 一組階梯的踏面是 30cm,其級高應該多高才是理想的組合?(A)10cm(B)6cm(C)15cm(D)20cm。
81. 一組階梯最少包含:(A)3 個踏面,4 個級高(B)3 個踏面,3 個級高(C)4 個踏面,3 個級高(D)4 個踏面,4 個級 5 高。
82. 關於一組階梯中,級高與踏面的關係,下列何者為真?(A)踏面永遠比級高多一個(B)即使級高的高度不變, 踏面的深度可以隨意增減(C)踏面的高度應該保持固定(D)一組階梯的寬度至少是踏面深度的兩倍。
83. 下列何者不是一組階梯平台的功能?(A)使戶外的空間產生整體的感覺(B)提供不同的觀察視野(C)在不同高 度的平台之間,提供一個休息區(D)影響行走的節奏感。
84. 關於戶外使用坡道,下列哪項敘述為誤?(A)所有的人都可以不費力地使用坡道(B)在整個設計中,先確定好 階梯位置,再考慮是否採用坡道(C)坡道的表面潮濕或積雪時,應注意安全問題(D)可以與一組階梯直接相連 使用。
85. 有位顧客想設置一條人行坡道,其垂直高度差是 75cm,那麼這條的水平距離,應該有多長比較理想?(A)9 m(B)7m(C)5m(D)3m。
86. 根據經驗,戶外座位應該離地多高?(A)10cm~30cm(B)40cm~45cm(C)50cm~60cm(D)60cm 以上。
87. 通常在任何情況下,那種座椅的材質最令人感覺舒適?(A)石材(B)磚塊(C)混凝土(D)木材。
88. 已知
右圖 的正視圖為(A)
(B)
(C)
(D)
。
89. 已知右圖
等角立體圖,請選出正確之俯視圖和正視圖(第三角投影法) (A)
(B)
(C)
(D)
。
90. 已知右圖
的右側視圖為(A)
(B)
(C)
(D)
。
91. 求扇形面積,下列那一個公式是對的?(A)半徑平方×π(B)(圓心角÷360)×半徑平方×π(C)(360÷圓心角)×半徑平 方×π(D)半徑平方×π÷圓心角。
92. 已知右圖
右側視圖為(A)
(B)
(C)
(D)
。
93. 已知右圖
為正視圖,試選擇合適的俯視圖(第三角投影法) (A)
(B)
(C)
(D)
。
94. 下列尺度線端部之符號何者為誤? (A)
(B)
(C)
(D)
。
95. 下列景觀建築材料符號,何者錯誤 (A)
級配(B)
木材(C)
卵石(D)
磚。
96. 景觀材料圖例
是指(A)木材(B)鋼材(C)石材(D)混凝土。
97.
圖號之“B”表示(A)標準圖編號(B)詳圖編號(C)設備圖編號(D)門窗編碼。 6
98. 為瞭解景觀建築基地位置,須向地政事務所請領(A)地質圖(B)地形圖(C)都市計畫圖(D)地籍圖。
99. 鋼筋混凝土之簡寫符號為(A)RC(B)PC(C)RB(D)SRC。
申論題 (0)
相關試卷
114年 - 13600 造園景觀 乙級 工作項目 08:工料計算 1-66(2025/12/19 更新)#135396
114年 · #135396
114年 - 13600 造園景觀 乙級 工作項目 07:維護管理 51-81(2025/12/19 更新)#135395
114年 · #135395
114年 - 13600 造園景觀 乙級 工作項目 07:維護管理 1-50(2025/12/19 更新)#135394
114年 · #135394
114年 - 13600 造園景觀 乙級 工作項目 06:水電施工管理 1-47(2025/12/19 更新)#135393
114年 · #135393
114年 - 13600 造園景觀 乙級 工作項目 05:非植栽材料施工 1-61(2025/12/19 更新)#135392
114年 · #135392
114年 - 13600 造園景觀 乙級 工作項目 04:植栽材料施工 51-107(2025/12/19 更新)#135391
114年 · #135391
114年 - 13600 造園景觀 乙級 工作項目 04:植栽材料施工 1-50(2025/12/19 更新)#135390
114年 · #135390
114年 - 13600 造園景觀 乙級 工作項目 03:基地放樣及整地 1-62(2025/12/19 更新)#135389
114年 · #135389
114年 - 13600 造園景觀 乙級 工作項目 02:材料及機工具之應用 51-109(2025/12/19 更新)#135388
114年 · #135388
114年 - 13600 造園景觀 乙級 工作項目 02:材料及機工具之應用 1-50(2025/12/19 更新)#135387
114年 · #135387