所屬科目:教甄◆機械科/模具科/製圖科/生物產業機電/電腦機械製圖科
1.有關包模鑄造法的敘述,下列何者錯誤? (A) 石膏模有良好的透氣性與絕熱性,可防止氣孔產生,舉凡金屬鑄件皆可適用。 (B) 瓷殼模鑄造法與脫蠟鑄造法的施工方法類似,其包膜材料為耐火材料與矽膠混合物。 (C) 殼模法係以乾矽砂與酚醛樹脂混合成約 3 至 5mm 的半邊薄殼,再將兩個半邊薄殼對合後即成殼模。 (D) 脫蠟鑄造法之鑄件尺度精確且表面光度高,適合形狀複雜鑄件,如渦輪機上的葉片。
2.有關機械材料加工性的敘述,下列何者錯誤? (A) 鋁質軟,切削易成積屑刃緣之切屑,需選用大斜角、高切速與加切削劑。 (B) 黃銅是銅與鋅的合金,其鑄造性比切削性好。 (C) 高延展性的材料較適合鍛造,鍛造後可增加其強度。 (D) 碳鋼的銲接性與含碳量成反比。且碳鋼也可進行鑄造加工,但鑄造性比鑄鐵差。
3.非傳統加工中,下列敘述何者不正確?(A) 雷射加工係將電能轉換為熱能的熱電加工方法。(B) 超音波加工的原理主要是利用高速振動。(C) 放電加工適用於硬度較高的導電材料。(D) 電化學加工最大特點是工件不易生熱。
4.小明是熱愛環保人士,剛買了自己心愛的手機,怕手機受到傷害,所以想買手機殼,也考慮到可回收的問題,請問他不應該選哪種材質製作的手機殼? (A) TPU 聚氨酯彈性體。 (B) MF 三聚氰胺甲醛樹脂。 (C) PTFE 聚四氟乙烯。 (D) POM 聚甲醛。
5.小花接到一批大量的渦輪葉片軍工加急訂單,且工件直徑 25mm 厚度在 15mm ,在不考慮成本下,只考慮時間越快越好,請問小花最好找有那些設備的廠商? (A)CHB 化學切胚。 (B)EDM 放電加工。 (C)ECM 電化學加工。 (D)Electroforming 電積成形。
6.下列那一個是製造無縫管的方法?(A) 森吉拉爾 Sendzımır mill。(B) 曼內斯曼工藝 Mannesmann process。(C) 哈澤萊特 Hazelett。(D) 阿爾可 Alcoa。
7.小李想應用陰極防蝕法,防止鋼板生鏽,可是找不到鋅棒,請問他可以採用那一種材質替代?(A) 錫 Sn (B) 銅 Cu (C) 鈦 Ti (D) 鋁 Al 。
8.志明在 CNC 車床轉速用 600RPM,車削 M20x1.5 螺紋前,要先計算刀座加速距離與退刀距離,請問下列一個數據較為適當? (A) 加速 2.145mm,退刀 0.3mm。 (B) 加速 2.145mm,退刀 0.7mm。 (C) 加速 3.145mm,退刀 0.3mm。 (D) 加速 3.145mm,退刀 0.7mm。
9.偏差位置共有 28 組,請問下面那一組是正常的?(A) L、zb、CD。(B) W、js、EF。(C) Q、ZC、ef。(D)S、ZA、fg。
10.對於凸輪的敘述,下列何者錯誤?(A) 基圓越大則壓力角越小。(B) 壓力角為不定值。(C) 偏心凸輪製造最容易。(D) 簡諧運動位移線圖為拋物線。
11.有一規格 M10×2 之雙線三角螺紋螺桿與螺帽配合,現今將螺帽以等速率式旋入螺桿,若測得螺桿端面的外緣切線速度為 62.8mm/sec,試問 4 秒後, 螺帽共進多少距離? (A) 28mm (B) 32mm (C) 36mm (D) 40mm
12.關於螺帽防止鬆脫裝置的敘述,下列何者錯誤? (A)螺帽止動板與翻上墊圈皆可擋住螺帽外緣,用以防止螺帽轉動,以達確閉鎖緊的作用。 (B)鎖緊螺帽是以固定螺釘增加摩擦力之摩擦鎖緊裝置 。 (C)開口銷、彈簧線、堡形螺帽等,用來防止螺帽脫落皆以穿孔固定達確閉鎖緊的作用。 (D)彈簧鎖緊墊圈是以彈簧墊圈彈力增加摩擦力之摩擦鎖緊裝置。
13.圓桿工件直徑為 50mm,進行粗車削時的切削速度應降低 25﹪,經計算後之 主軸轉速為 800rpm,則此工件原來的切削速度約為多少 m/min? (A) 116 (B) 143 (C) 166 (D) 182
14.下列有關視圖的敘述,何者不正確? (A) 繪製中斷視圖時,在折斷處以不規則細實線表示。 (B) 標註半視圖尺度時,尺度線的長度必須超過圓心。 (C) 對稱機件可用半視圖繪製,以節省圖紙空間。 (D) 規則長形物體,可使用中斷視圖,而總長的尺度數字必須加上括弧以利識別。
15.有關機械製圖尺度的標註,下列何者錯誤? (A)最外側的尺度線距離尺度界線末端約 2~3mm。 (B)必要時,輪廓線和中心線可直接當尺度線使用。 (C) 同一側的尺度線並列時,其間隔約為字高的 2 倍。 (D)水平方向的尺度,其數字應朝上書寫;而垂直方向的尺度,則數字應朝左書寫。
16.對於凸輪的敘述,下列何者錯誤?(A)越大則壓力角越小。(B)壓力角為不定值。(C)偏心凸輪製造最容易。(D)簡諧運動位移線圖為拋物線。
17.小楊在齒輪加工廠,針對未經熱處理之齒輪,想修正齒輪之正確的齒形、同心度、齒間隔及其各部位的尺寸精度,請問下列一個加工法較為適當? (A)輪磨(Grinding)。 (B)研磨(Lapping)。 (C)擦光(Buffing)。 (D)搪齒(Gear honing)。
18.如圖(1)所示,拆除大隊將起重機用長 5m 之鋼索掛 5000N 重錘拆除一幢房子,若 θ 為 53 度,則可敲破牆壁多少 J 的能量?(A) 12000J (B) 11000J (C) 10000J (D) 9000J
19.有關製圖線條的敘述,下列何者不正確?(A)用以標示圖形中心線的鏈線,其畫法是連續兩長線段間隔一小線段。(B)虛線通常作為隱藏,其畫法是每段 3 ㎜間隔約 1 ㎜。(C)實線與虛線重疊時,只要繪製實線即可。(D)實線有粗細之分,通常粗線是作為可見輪廓線或圖框線。
20.如圖(3)所示為某物體之三個主要視圖,已知其前視圖及俯視圖,試選出正確的右側視圖?(A)(B)(C) (D)
1. 請推導出如圖 4 開口皮帶長度為L = (D+ d) + 2C +。(10 分)
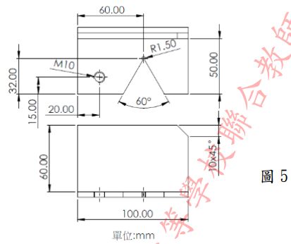
2. 公司預計在兩鋼板中做填角銲接,因為必須在現場施工,且需用 TIG 施工,考慮西工只看得懂中文,所以老闆要求註解須完全用中文,請嘗試在 圖 5 繪出標準銲接標示。(3 分)
3. A 物體沿者與底面夾角之光滑斜面,底部以 10m/s 的初速度沿斜面射出,B 物體則以10m/s,仰角θ斜向拋出,則 A、B 兩者至最高點之時間比為 4, 求θ為幾度?(8 分)(g=10m/s2)
4. 何謂撓性聯結器?其種類有哪些?(需寫出 6 個以上)(6 分)
5. 如圖 6 請計算分析並繪製樑的剪力圖和彎矩圖。(5 分)
6. 請推導如圖 7 外接圓錐型摩擦輪,大輪半徑R,轉速n,小輪半徑r,轉速N,當夾角θ = 90°,tana = ,tanβ =。(10 分)
7. 如圖 8 三個扁平塊置於 30°斜面上,中間扁平塊受到一平行於斜面的拉力 F。上面 30kg 平塊以一金屬線繫住以防止移動,30kg 與 50kg 接觸面的靜摩擦係數為 0.3,50kg 與 40kg接觸面的靜摩擦係數為 0.4,40kg 與 30°斜面接觸面的靜摩擦係數為 0.45。試求在任何滑動發生之前 F 可能的最大值。(10 分)
8. 如圖 9 所示之方形桿件,同時承受雙軸向應力作用,試求 m-n 斜截面上之正交應力及剪應力各為多少?(8 分)