所屬科目:統測◆06土木與建築群◆(二)測量實習、製圖實習
2. 本週土一甲測量實習課的進度是定樁校正法 ( 木樁校正法 ),同學們練習如何校正水準儀 視準軸,其示意圖如圖(一)所示。b1、f1、b2及 f2各觀測數據如表(一)。則圖(一)中的 f2'應為何?(A) 1.950m (B) 1.955m (C) 1.957m (D) 1.958m
3. 某新建吊橋為確認主索各夾具點位高程,進行附合水準的逐差水準測量,表 ( 二 ) 為附合 水準測量記錄表,已知點 BM 01 高程為 5.518 m,BM 02 高程為 5.991 m。已知高程閉合差 為 + 0.004 m,若甲為 B 點後視標尺讀數、乙為 B 點改正後高程,則下列組合,何者完全 正確? (A) 甲=1.349m,乙=6.079m(B) 甲=1.345m,乙=6.082m(C) 甲=1.349m,乙=6.085m(D) 甲=1.348m,乙=6.085m
4. 台 9 線施工期間,進行橋台 D 高程水準測量,表 ( 三 ) 為水準測量記錄表,A 點已知高程 為 10.000 m,假若水準儀及標尺剛剛完成校正,忽略任何儀器誤差及自然誤差,因為某些 原因,後視 A 點標尺向前傾斜 2 °30 ',在另一測站時,前視 B 點標尺向後傾斜 2 °30 ' (註:cos 2 °30'=0.999,sin 2 °30 '=0.044 ) 甲,乙分別為 TP1、B 點改正後高程,則下列組合,何者完全正確? (A) 甲=10.300m,乙=10.900m (B) 甲=10.298m,乙=10.899m (C) 甲=10.300m,乙=10.899m (D) 甲=10.298m,乙=10.900m
6. 土一甲今天測量實習課的進度是,進行消除水平度盤刻劃誤差練習,將經緯儀整置於 P 點, 照準起始點 A、終點為 B 點,正鏡及倒鏡各觀測一次是為一測回,總計三測回,觀測記錄 如表(四)所示。若甲、乙兩欄數值因滴到水而模糊不清,則下列組合,何者完全正確? (A) 甲=317 °31 '00 ",乙=17 °30 '30 " (B) 甲=137 °31 '00 ",乙=52 °32 '15 " (C) 甲=317 °31'00 ",乙=52 °32 '15 " (D) 甲=137 °31 '00 ",乙=17 °30 '30 "
7. 土一乙今天測量實習課的進度是,進行單角法水平角觀測,將經緯儀整置於 P 點,照準 起始點 A、終點為 B 點,正鏡及倒鏡各觀測一次,觀測記錄表如表 ( 五 ) 所示。若甲、乙 兩欄數值因滴到水而模糊不清,則下列組合,何者完全正確? (A) 甲=0 °00 '08 ",乙=38 °23'57 " (B) 甲=180 °00 '08 ",乙=38 °23 '57 " (C) 甲=0 °00'08 ",乙=38 °23'49 " (D) 甲=180 °00 '08 ",乙=38 °23 '49 "
8. 某工地有已知 A、B兩點之(N,E)坐標,分別為 A(100.000,100.000)、B(50.000,50.000), 單位:m。今欲在 A 點整置全站儀,先照準 B 點,再依順時針方向旋轉,補測一控制點 C,觀測記錄如表(六)所示。則 C 點坐標(N,E)為何? (註:sin45°=0.707、cos 45°=0.707、sin 270°=– 1.000、cos 270°=0)(A) (100.000,0.000 )(B) ( 0.000,100.000 )(C) (70.700,70.700 )(D) (170.700,170.700 )
13. 為求得某新建吊橋橋台高程,工程師於已知高程 100 m 之水準點 A 整置全站儀,並照準 架設於橋台處 B 點之稜鏡,觀測記錄如表(七)所示。則橋台 B 點之高程為何? (註:sin30°=0.500、sin 60°=0.866、sin 300°=– 0.866 ) (A) 13.3m (B) 149.9m(C) 150.1m(D) 186.5m
16. 於某公路施行縱斷面水準測量,測量記錄如表(八)所示。則下列何者正確? (A) 由 2 k+040 至 2 k+120,其縱斷面為直線上坡 (B) 由 2 k+040 至 2 k+120,縱斷面最高點與最低點相差 2.500m (C) 2 k+100 之中心樁高程比 2 k+040 者高 1.500m (D) 2 k+120 之中心樁高程比 2 k+040 者高 1.700m
23. 根據各直線投影圖,下列相關敘述何者錯誤? (A) 直線 AB 通過第二象限和第三象限 (B) 直線 AB 通過第一象限和第三象限 (C) 直線 AB 通過第一象限和第二象限 (D) 直線 AB 通過第一象限和第四象限
25. 已知立體圖如圖(二),何者為其正確的正投影視圖? (A)(B) (C) (D)
26. 下列關於某一種形式門窗的平面、立面和剖面圖符號的組合,何者正確? (A) 雙拉窗 (B) 雙開窗 (C) 上下拉窗 (D) 迴轉門
28. 有關曲線畫法的敘述,下列何者正確?
(A) 複曲面體是由直線移動而產生之曲面,其相鄰之素線既不平行也不相交 (B) 圖(三)為雙曲線 (C) 圖(四)為漸開線的繪製法 (D) 在圓錐體不同位置作任一平面切割,所形成斷面形狀可能會產生圓、橢圓、雙曲線 及等腰三角形
30. 圖(五)為以第三角法繪製的俯視圖、前視圖和右側視圖,下列何者為其左側視圖? (A) (B) (C) (D)
32. 依 CNS11567 規範,繪製剖面圖時,不同符號用來表示不同的材料。下列何者正確? ①玻璃 ②空心磚牆 ③卵石 ④石材 (A) ①④ (B) ②③ (C) ③④ (D) ①②
33. 某一設計師的自宅剖面如圖(六)所示,下列敘述何者錯誤? (A) 工作室與浴室之間的隔間牆材料為鋼筋混凝土 (B) 於二樓露臺無法看到起居室 (C) 主臥室內可由後庭院獲得外氣 (D) 主臥室內有單開門
35. 一創業家於美國西雅圖市 ( 北緯 47.60°,西經 122.33°) 有一自用住宅,如圖 ( 七 ) 所示。 下列何者不可能為該建築在夏至時( 6 月 21 日),自然光源照射下的影子? (A) (B) (C) (D)
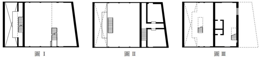
36. 圖Ⅰ、圖Ⅱ、圖Ⅲ為一市郊雙拼住宅不同高度的平面圖,下列何者為這三張平面圖的正確 切面高度? (A) (B) (C) (D)
38. 某設計師正進行一公共藝術作品草案發展,根據俯視圖如圖(八)進行造型檢討,下列何者 不可能為其透視圖? (A) (B) (C) (D)
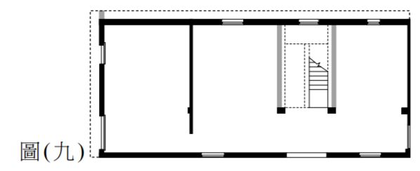
39. 花蓮一棟地上兩層樓建築,一樓樓高為 3 m、簷高為 6 m,以水平切面平均切在同一高點 且無切面轉折,繪製其一樓平面圖如圖(九)所示,下列何者不可能為此住宅的立面圖? (A) (B) (C) (D)