阿摩線上測驗
登入
首頁
>
機械工程製圖
> 100年 - 100 鐵路特種考試_佐級_機械工程:機械工程製圖大意#33977
100年 - 100 鐵路特種考試_佐級_機械工程:機械工程製圖大意#33977
科目:
機械工程製圖 |
年份:
100年 |
選擇題數:
40 |
申論題數:
0
試卷資訊
所屬科目:
機械工程製圖
選擇題 (40)
1根據第一角法所繪製之視圖,其俯視圖會放置於前視圖的: (A)上方 (B)下方 (C)右方 (D)左方
2 視圖中如果有不同種類的線條重疊,最優先繪製的是: (A)中心線 (B)尺度線 (C)輪廓線 (D)剖面線
3下列視圖中,那一種視圖不能夠表達物體或是機件的高度尺度? (A)前視圖 (B)右側視圖 (C)俯視圖 (D)後視圖
4在局部剖面的剖視圖中,剖視與非剖視部分的分界線以折斷線畫之,折斷線是以什麼式樣的線條繪 製? (A)粗實線 (B)細實線 (C) 一點鏈線 (D)虛線
5空間中有一線段不垂直也不平行於主要投影面,該線段的實際長度可以在何者視圖中求得? (A)半視圖 (B)轉正視圖 (C)放大視圖 (D)輔助視圖
6在尺度數字外加註括弧,例如:(X),表示此尺度數字X爲: (A)特別重要的尺度 (B)物件的總長、總寬、或是總高 (C)供參考用的參考尺度 (D)相對於基準面的基準尺度
7 爲了能夠製造機件達到應有的精度及具有互換性,所以必須訂定機件的: (A)尺度 (B)註解 (C)公差 (D)配合
8最小極限尺度與基本尺度之差,亦即是: (A)上偏差 (B)下偏差 (C)最大公差 (D)最小公差
9若一軸與一孔相互套接在一起,如果希望要有餘隙配合,下列那一項必須成立? (A)軸的最大極限尺度必須大於相配合的孔的最大極限尺度 (B)軸的最小極限尺度必須大於相配合的孔的最大極限尺度 (C)軸的最大極限尺度必須小於相配合的孔的最小極限尺度 (D)孔的最小極限尺度必須小於相配合的軸的最大極限尺度
10依據CNS工程製圖標準,正齒輪中的節圓以下列何者線條繪製? (A)細實線 (B)—點細鏈線 (C) 一點粗鏈線 (D)兩點細鏈線
11下圖爲一物體之等角圖,求出斜面的正確斜度:
(A)1 : 2 (B)l : 2.5 (C)l : 3 (D)l : 4
12已知一正立方體之實際體積爲lm
3
,若工作圖之比例爲1 : 100,則工作圖上邊長之繪製長度爲何? (A)lmm (B)10mm (C) 100mm (D) 1000mm
13依據CNS工程製圖標準,一機械零件之尺度若與其他零件組合有關,則該尺度屬於下列何者? (A)功能尺度 (B)非功能尺度 (C)參考尺度 (D)多餘尺度
14 一螺紋之尺度標註爲2NM10X1.5,求出該螺紋的導程(lead): (A) 1.5mm (B)2mm (C)3mm (D)5mm
15依據下圖之尺度標註,求出最小間隙,單位爲mm :
(A)0.034mm (B)0.050mm (C)0.009mm (D)0.025mm
16在下圖中,利用第三角法續製一物體的正投影視圖,何者爲所缺少的前視圖?
17在下圖中,利用第三角法繪製一物體的正投影視圖,何者爲所缺少的右側視圖?
18在下圖中,利用第三角法繪製一物體的正投影視圖,何者爲所缺少的前視圖?
複選題
19在下圖中,利用第三角法繪製一物體的正投影視圖,何者爲所缺少的俯視圖?
20在下圖中,利用第三角法繪製一物體的正投影視圖,何者爲所缺少的右側視圖?
21在下圖中,利用第三角法繪製一物體的正投影視圖,何者爲所缺少的前視圖?
22 在下圖中,利用第三角法繪製一物體的正投影視圖,何者爲所缺少的右側視圖?
23下圖所示一物體的等角圖,選出在箭頭指示方向的正確投影視圖:
24下圖所示一物體的等角圖,選出在箭頭指示方向的正確投影視圖:
25下圖所示一物體的等角圖,選出在箭頭指示方向的正確投影視圖:
26下圖所示一物體的等角圖,選出在箭頭指示方向的正確投影視圖:
27已知一物體之等角圖,請依箭頭指示方向,選出正確之剖視圖:
28下列各剖視圖中,何者爲標準之剖視圖表示法?
29依據CNS工程製圖標準,下列何者爲內螺紋之表示法?
30下圖爲一物體之等角圖,請依箭頭指示方向,選出正確之投影視圖:
31下圖爲一物體之等角圖,請依箭頭指示方向,選出正確之投影視圖: 32下圖爲一物體之等角圖,請依箭頭指示方向,選出正確之投影視圖:
32下圖爲一物體之等角圖,請依箭頭指示方向,選出正確之投影視圖:
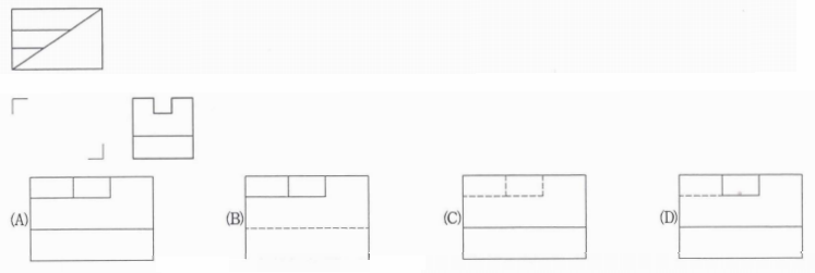
33 下圖爲一物體之等角圖,請依箭頭指示方向,選出正確之投影視圖:
34下圖爲利用第三角法繪製一物體之前視圖和俯視圖,何者爲此物體正確之右側視圖?
35下圖爲利用第三角法繪製一物體之前視圖和俯視圖,何者爲此物體正確之右側視圖?
36下圖爲利用第三角法繪製一物體之前視圖和左側視圖,何者爲此物體正確之俯視圖?
37下圖爲利用第三角法繪製一物體之前視圖和俯視圖,何者爲此物體正確之右側視圖?
38下圖爲利用第三角法繪製一物體之右側視圖和俯視圖,何者爲此物體正確之前視圖?
39下圖爲利用第三角法繪製一物體之前視圖和右側視圖,何者爲此物體正確之俯視圖?
40下圖爲利用第三角法繪製一物體之前視圖和俯視圖,何者爲此物體正確之右側視圖?
申論題 (0)
相關試卷
105年 - 105 鐵路特種考試_佐級_機械工程:機械工程製圖大意#53465
105年 · #53465
104年 - 104 鐵路特種考試_佐級_機械工程:機械工程製圖大意#22124
104年 · #22124
103年 - 103 鐵路特種考試_佐級_機械工程:機械工程製圖大意#22132
103年 · #22132
102年 - 102 原住民族特種考試_五等_機械工程:機械工程製圖大意#34548
102年 · #34548
102年 - 102 鐵路特種考試_佐級_機械工程:機械工程製圖大意#34280
102年 · #34280
101年 - 101 原住民族特種考試_五等_機械工程:機械工程製圖大意#35958
101年 · #35958
101年 - 101 鐵路特種考試_佐級_機械工程:機械工程製圖大意#21207
101年 · #21207
99年 - 99 鐵路特種考試_佐級_機械工程:機械工程製圖大意#35966
99年 · #35966
98年 - 98 鐵路特種考試_佐級_機械工程:機械工程製圖大意#36856
98年 · #36856
97年 - 97 鐵路特種考試_佐級_機械工程:機械工程製圖大意#35847
97年 · #35847