所屬科目:教甄◆建築科/土木科
3、一複合矩形斷面樑由材質 1 與材質 2 組成,其斷面與應變如圖(1) 若受正彎矩作用,且應變量ε1為 0.1,應變量ε2為 0.06,請問其 複合矩形之形心至其中立面距離為多少? (A) 5 (B) 10 (C) 8 (D) 4 cm
7、下列 ab 點之投影所處之象限圖(2),何者正確? (A) ② ③ (B) ① ② (C) ③ ④ ④ (D) ② ④
8、一立體以第三角法繪製之前視圖與俯視圖如圖(3),則下列為其正確的側視圖? (A) (B) (C) (D)
9、某案的基礎版(FS)施工圖如圖(4)所示,已知該工程已經完成基礎開 挖,開挖深度如圖中標註,且後續須進行 10cm 厚的 2000psi PC 薄層澆注,作為 PC 完成面。若已知基礎版厚 T=25cm,則關於下列敘述 何者正確?(註:圖面單位皆為 cm) (A) 一樓地坪完成面應標示為 GL +15 (B) 現況土方高程應標示為 GL -60 (C) 開挖完成面向上 110cm 處應標記為 GL±0 (D) 擋土牆完成面高度與開挖完成面高度相差 140cm
10、一正方形斷面(斷面邊長為 a)的材料中間部分切一凹痕減少為 a/2 (厚度仍為 a)斷面如下圖(5),受一 P 力拉動,請問其中間縮小的部 分其 A 面的所受應力為何? (A) (B) (C) (D)
14、慣性矩為 I ,極慣性矩為 J ,面積為 A,截面係數為 Z,迴轉半徑為 K,則下列關係何者錯誤? (A) (B) (C)I=A×K2(D)J=A×K2
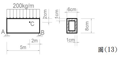
17、某案的室內配置圖如圖(6)所示則圖中標示①的牆應屬於建築技術規則中認定的何種牆面? (A) 外牆 (B) 分間牆 (C) 分戶牆 (D) 帷幕牆
19、下列敘述何者正確。 (A)樑之危險斷面必在剪力為零處。 (B)由多構建組合之組合樑,其接合面剪力計算可直接用進行計算。 (C)物體接觸平面其摩擦角為正向力 N 與摩擦力 FS 之比值,並由反正切函 數求得。 (D)面積相同下,設計斷面考量經濟效益其 矩形斷面>方形斷面>圓形斷面
20.黏土是陶瓷製品的主要原料,下列有關於陶瓷製品與黏土相關之敘述,何者為正確? ①黏土主成分有:矽土(SiO2)與 礬土(Al2O3),約佔黏土成份 80 ~90% ②通常塑性大者收縮亦較大,其中乾燥收縮 <燒成收縮 ③鐵化合物(Fe2O3 及 FeO)的存在可使黏土顏色變深,軟化點上升 ④普通磚之主要原料為〝砂質黏土〞,屬於一次黏土,其矽土及礬土之含量在 90%以上 ⑤磚的吸水率與其孔隙率、硬度、抗壓強度及耐凍融性有關;磚的吸水率之多寡,可做為耐久性表徵 ⑥筒板瓦又稱中國瓦或琉璃瓦,為中國古代傳統式建築或現今之廟宇所常用;文化瓦則為台灣閩南建築屋瓦所常見(A)③、④ 、⑥ (B)②、④、⑤ (C)①、③、⑥ (D)①、②、⑤
5、一立體如圖(7)所示,該構成之立體中共有________ 個面為三角形。
7、一凸輪廓設計如圖(8)所示,其不規則曲線的部分是屬於:________ 。
三、 計算題1、試求如圖(9)所示桁架中 BC 及 BG 桿件之內力?
2、求如圖(10)面應力之元件,=-50kgf/cm2,=150kgf/ cm2 (拉應力為+ 壓應力為-), kgf/ cm2,試求最大主應力 σ1 與最小主應力 σ2之值,及產生此兩主應力之方向 θ1及 θ2各為若干?
3、今有一單位長度材料為均質且具等向性,其彈性係數為 E,僅受一軸向應力,若材料蒲松比為 μ,請導證其材料受軸向應力後,其體積應變為。
4、如圖(11)繪製樑剪力圖及彎矩圖,圖中詳註剪力值和彎矩值大小及圖形種類
5、 間接高程測量中,儀器架設 B 點,利用三角高程測量方法,由已知高程 A 點 引測至 C 點高程,今其測量元素符號如表所示,請導證
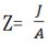
6、中空斷面簡支梁,受了一均佈載重如圖(13)所示,請繪製出樑內C點處之平面應力圖。(可用分數表示其值)
7、今天中油公司欲施作圓形儲油槽,其利用展開導線由AB為線段引測至儲油槽 圓上界址三點C、D、E(三點皆在圓上),若假設觀測並無誤差,其AB方位角 (φAB=115°32'07")與各測量之折角如圖(14)所示,(1)今若已知C點座標(E, N)=(1000,800)請求出E點座標(E,N),(2)為施作其他相同大小儲油槽,需儲油 槽之半徑與圓心O座標資料,請求其儲油槽半徑R與圓心O座標。 (cos15°=0.965 , sin15°=0.258,cos105°=-0.258, sin105°=0.965 )
8、圖(15)一物重 500kg,置於斜面上,物體與斜面間之摩擦係數為 0.3,則作 用於物體之摩擦力為多少?