阿摩線上測驗
登入
首頁
>
技師◆ 船體結構學
>
97年 - 97 專技高考_造船工程技師:船體結構學#36337
> 申論題
題組內容
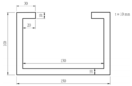
三、計算下圖之(假設下圖為一簡略之船體剖面圖): (25 分)
⑶剖面模數(Section Modulus, SM):含甲板(deck)與底板(bottom)之 SM
相關申論題
一、在計算船體結構強度時,通常分 3 個階段或階層來分析,第一層分析稱(初步)主 要行為分析(primary behavior),第二層分析稱次級行為分析(secondary behavior), 第三層分析稱第三級行為分析(tertiary behavior)。請試說明這 3 層級的行為,其 中包含其外力來源的考量,計算的部位的圖示與說明,以及可求取的資訊(如…應 力),最後說明各層級所使用的計算理論(theory)。(25 分)
#100564
⑴中性軸(Neutral Axis)
#100566
⑵慣性矩(Moment of Inertia)
#100567
⑷當此斷面受力矩為 4000N‧m 時,請求出σ deck、σ bottom之最大應力。單位:mm
#100569
五、某船橫剖面為矩形,船寬 10m,船深 5m,艙口 6m 位於甲板中央,甲板左右舷對稱各為 2m,板厚均為 10mm,如圖所示。請計算該剖面剪力中心位置。(20 分)
#526309
(二)若受 10 MN 之垂向剪力作用時,求側板及隔艙壁所受之剪應力。 (5 分)
#526308
(一)若受 100 MN-m 向上凹垂向彎矩作用時,求其最大拉應力及最大壓應力。(15 分)
#526307
三、某均勻矩形橫剖面之駁船,其船長 10m、船寬 5m、船深 2m。假設未裝載前吃水為 0.8m,且不受縱向剪力及彎矩作用。若於船艏段 5m 長部分,均勻裝載 5000kg 鐵板,如圖所示。請繪出裝載後駁船所受之負荷、剪力及彎矩圖,並標示各區段極大值。(20 分)
#526306
(二)請說明船體結構所使用夾心板之組成、材料、承力方式及其優點。(10 分)
#526305
(一)鋼材與 FRP 船體之縱向加強材,其剖面形式有何差異?並請說明原因。(10 分)
#526304
相關試卷
113年 - 113 專技高考_造船工程技師:船體結構學#123883
113年 · #123883
111年 - 111 專技高考_造船工程技師:船體結構學#111898
111年 · #111898
109年 - 109 專技高考_造船工程技師:船體結構學#93233
109年 · #93233
107年 - 107 專技高考_造船工程技師:船體結構學#73015
107年 · #73015
103年 - 103 專技高考_造船工程技師:船體結構學#25049
103年 · #25049
101年 - 101 專技高考_造船工程技師:船體結構學#26288
101年 · #26288
99年 - 99 專技高考_造船工程技師:船體結構學#29686
99年 · #29686
98年 - 98 專技高考_造船工程技師:船體結構學#35596
98年 · #35596
97年 - 97 專技高考_造船工程技師:船體結構學#36337
97年 · #36337
96年 - 96 專技高考_造船工程技師:船體結構學#34460
96年 · #34460